Saltar al contenido
Toggle Navigation
Inicio
Sobre mí
Obras
Proyectos
Contacto
EN
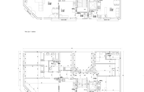
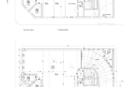
Edificio de viviendas en Palma
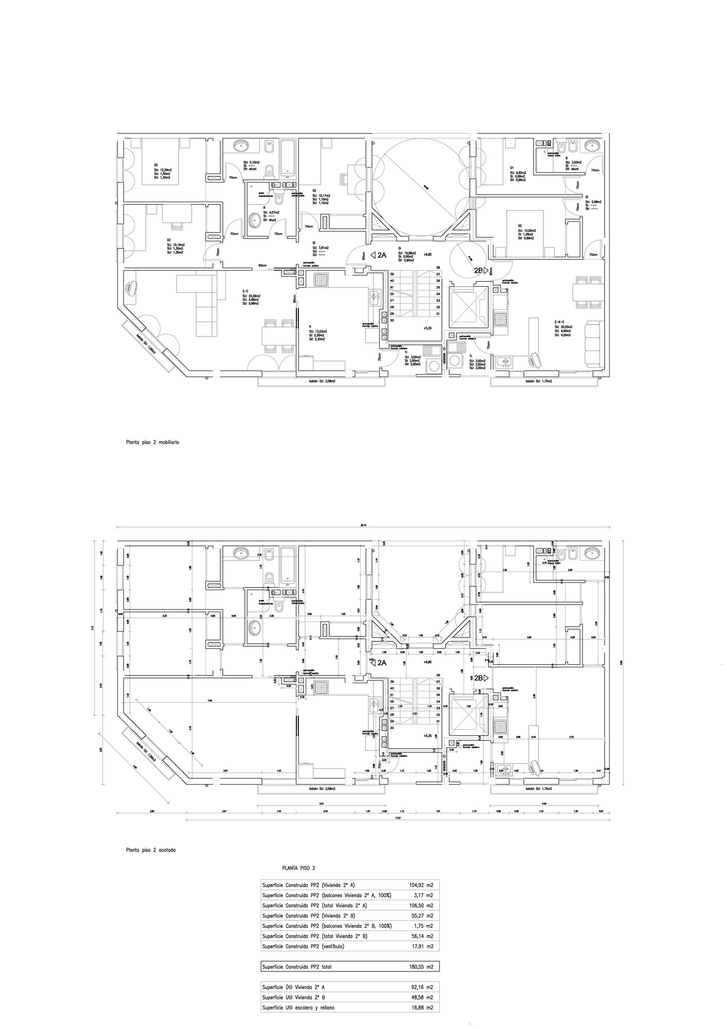
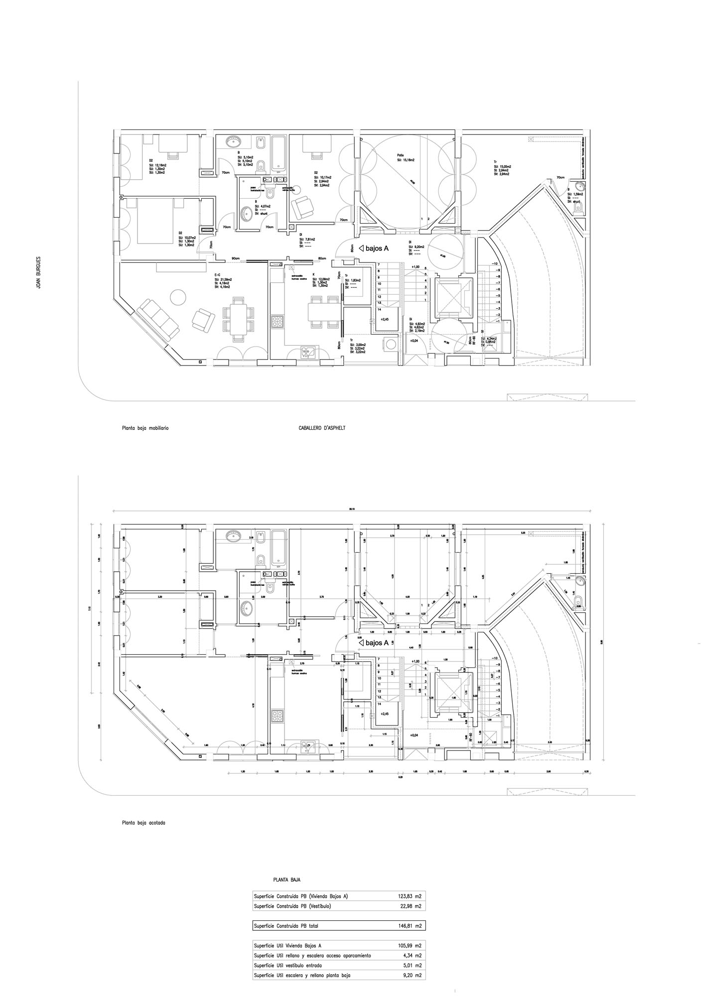
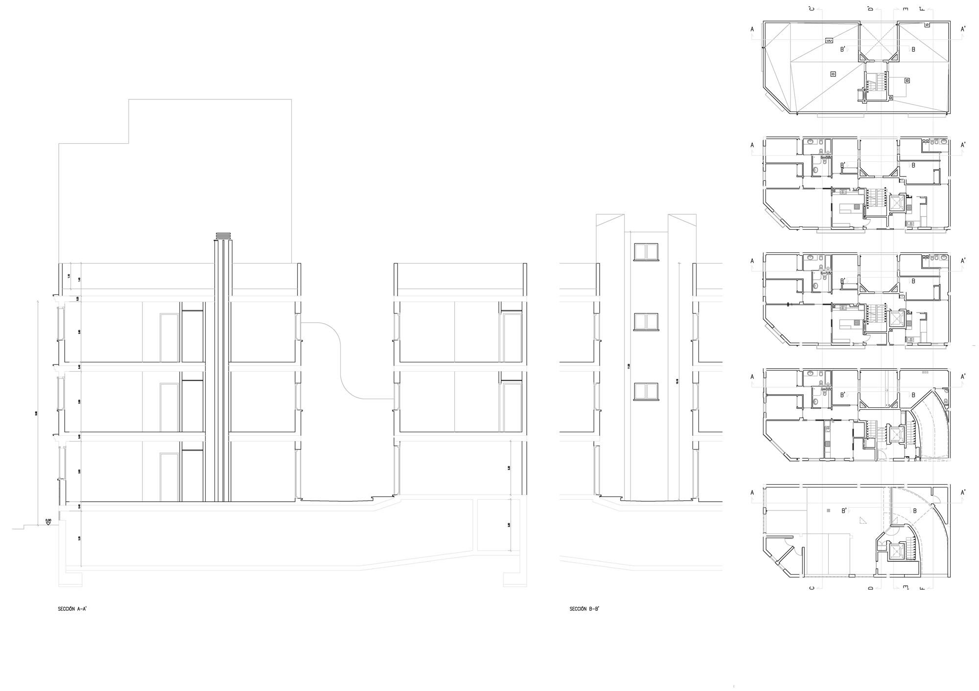
Planos
Page load link
Ir a Arriba