Skip to content
Toggle Navigation
Home
About me
Works
Projects
Contact me
ES
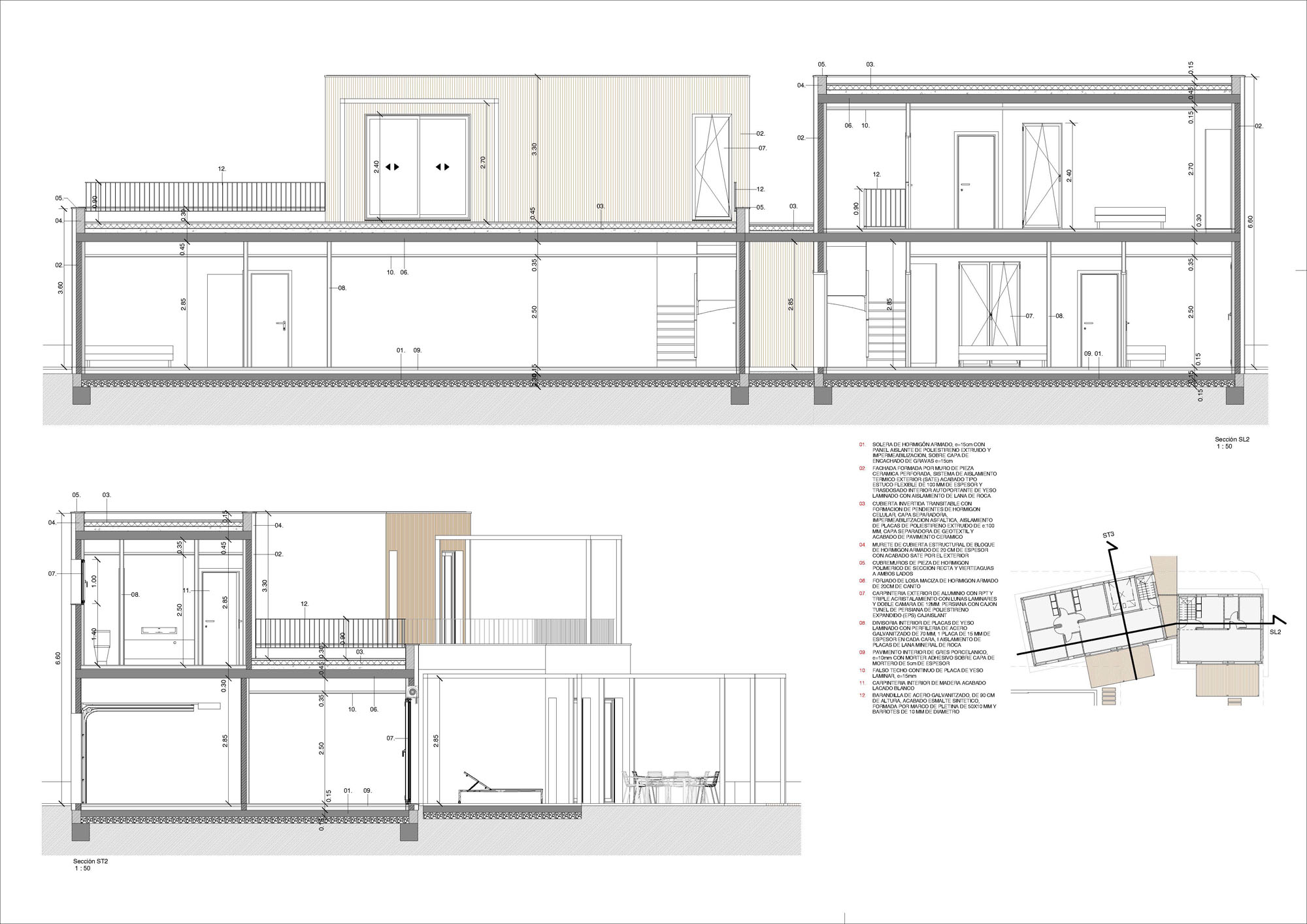
2 houses in Las Lomas de Gállego, Zuera
Plans
Page load link
Go to Top